Uz sākumlapu Lapas karte Kontakti
Nekustamo īpašumu katalogs
29.04.2014
 

Meklēt īpašumu

ID
Darījums
Tips
Apakštips
Pilsēta
Rajons
Iela, vieta
Istabas
no   līdz
Platība, m2
no   līdz
Cena
no   līdz
Valūta
Tikai brīvie objekti
Tikai jaunie projekti
654 objekti
   
 
Nekustamais īpašums

Latvijā

Rīgā

Dzīvokļi

Rīgā

Pārdod māju

Latvijā

Rīgā

Zeme

Latvijā

Rīgā

Jūrmalā

Izīrē dzīvokli

Rīgā

Jūrmalā

 


Valūtu kalkulators

12.04.2026, Latvijas Banka / ECB

1 EUR =

USD  : 
RUB  : 
GBP  : 
->
   




Pirkuma summa
Valūta
Pirmā iemaksa %
Procentu likme %
Termiņš (gadi)
Mēneša maksājums
0 EUR
Pilns maksājumu grafiks Pieteikties konsultācijai

Uzziniet vairāk:
67 096 096
www.nordea.lv
Apraksts:
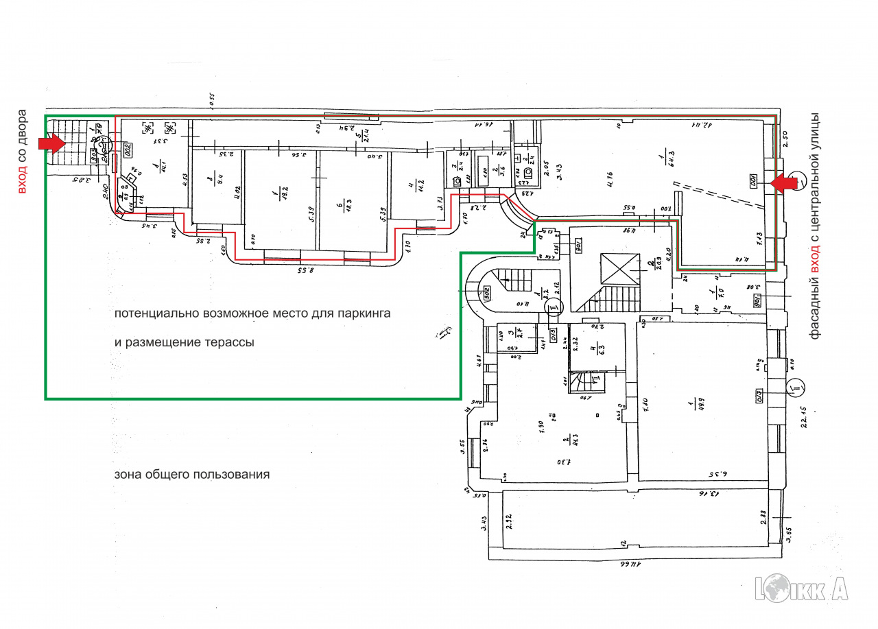
Tiek pārdotas komerctelpas, kas ir izvietotas Rīgas centrā Krišjāņa Valdemāra ielā. Telpas ir iespējms piemērot skaistum kopšanas salonam, veikalam, kafejnīcai, restorānam utt. Telpu tuvumā ir attīstīta infrastrukstūra, sabiedriskā transporta pietura, autostāvvietas, ofisi, jauni dzīvojamie projekti, veikli, kafejnīcas, stomatoloģijas kabinets. Telpām(kas sastāv no divām istabām un pašlaik ir savienotas viena ar otru)ir divas ieejas: viena no fasādes puses Kr. Valdemāra ielā, otra pagalma pusē, kuru var izmantot kā dienesta ieeju/izeju, preču piegādēm u. c. Telpām ir pieejams brīvs papildus ventilācijas kanāls, ko var izmantot papildus ventilācijas izveidei. šobrīd tiek izstrādāts projekts individuālā siltuma skaitītāja uzstādīšanai telpās. Mājā ir uzstādīts savs apkures katls, telpās ir centrālā ūdensapgāde, kanalizācija, elektrība. Telpām no fasādes puses ir uzstādīti jauni vitrīnas tipa logi un jauni mini Jaga radiatori.

  DOCX PDF
Cena: 200 000 EUR  
Cena par m²: 1 198 EUR / m²
Platība: 167 m²
Mājas sērija: Pirmskara
Uzcelšanas laiks: 1910
Griestu augstums: 3.3 m
Stāvs: 1 / 7
Apkures sistēma: centrālā apkure
Komunikāciju tīkls: centrālais ūdensvads
centrālā kanalizacija
Zemesgrāmata: (skatīt) jpg, 1.61 MB


Kontaktinformācija:
SIA Loikk A
Genadijs Kirilovs

Tālr.: +371 29521173
E-pasts: direktors@loikka.lv
Skype: direktors23
uzdot jautājumu
Pārdod veikala ēku, Rīga, Centrs, Krišjāņa Valdemāra iela 39 (ID: 2583)



Pielikumi:

pdf Inventarizācijas lieta (565.46 KB)

pdf Zemes robežplāns (663.05 KB)


LOIKK A nekustamie īpašumi
Sekojiet mums
TwitterLinkedInFacebook
Augšup
Pārstāvniecība Latvijā
SIA Loikk A
Krāslavas iela 12-1, Rīga
Tel.: +371 67205216
Mob.: +371 29718568
E-pasts: info[*]loikka.lv
Nekustamā īpašuma aģentūra LOIKK A nodarbojas ar nekustamo īpašumu pirkšanu – pārdošanu, nekustamā īpašuma apsaimniekošanu, īri un maiņu, piedāvājot vislabākos piedāvājumus tādā jomā kā: nekustamais īpašums Latvijā, nekustamais īpašums Jūrmalā, OCTA, dzīvokļi Rīgā, dzīvokļu īre Rīgā un citās Latvijas pilsētās, privātmājas Rīgā, kā arī zeme Rīgā, Jūrmalā un citās lielākajās Latvijas pilsētās.

2010-2026 © SIA LOIKK A, Latvija.

Top.LV